The
Garden Party
House

No:00001

Category:House Plan

Concept;

By the Gardener,
For the Gardener.

このプランは
植物が好き。
緑に囲まれて過ごしたい。
ゆったりとした庭で過ごす時間が欲しい。
そんな方のために家を作ってみたい。
「楽しむ家」を作りたい。
それがこのプランの出発点でした。

このプランの特徴は
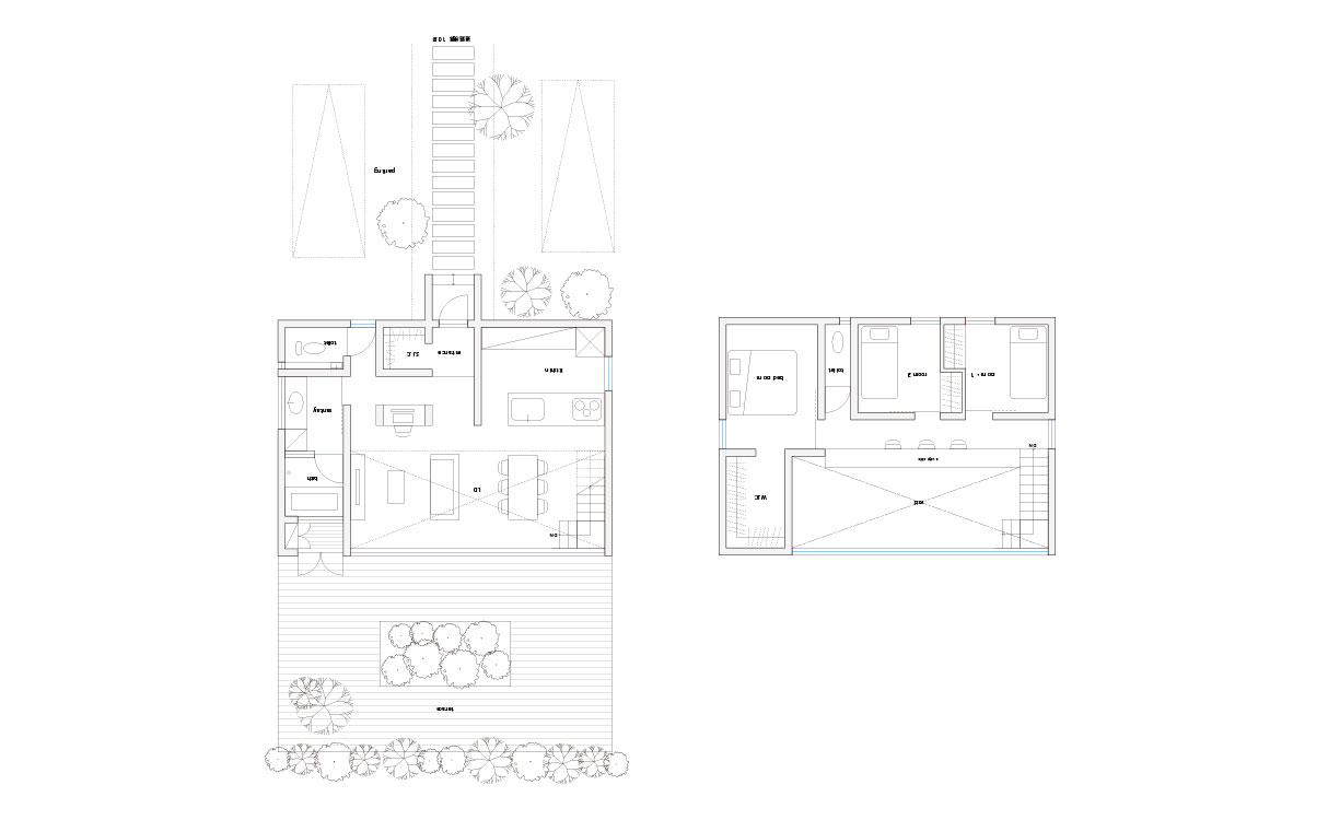
・リビングとつながる広々したウッドデッキ
・室内でも光や風を十分に感じることのできるメインウィンドウ。

広々としたデッキを植物でいっぱいにしたり、
デッキをくり抜いて木を植えてみたり、
デッキと繋がったリビングも鉢を並べて
季節の移り変わりや
植物の成長を楽しんだり。

きっとゆったりとした時間の流れを感じる家です。
子供と一緒に庭に水を撒いたり
夫婦でデッキに出てコーヒーを飲んだり
椅子を持ち出して本を読んだり。

家で過ごす時間が住んでいる人をさらにきっと輝かせてくれるのでは?
そんなことを妄想しながら作りました。

お客様の条件に合わせた土地もお探しすることも可能です。
ご希望の土地に合わせてカスタマイズも可能です。

このプランを少しでも気に入っていただけましたら
一緒に家づくり始めてみませんか?

お気軽にインスタグラムかメールでメッセージください。
心よりお待ちしております。

bunny.

Details;

Detail of Plan

おすすめ敷地面積:40坪程度
間取り:3LDK
構造:木造
外壁:ガウバリウム鋼板一文字噴
内壁:スイス漆喰
床:無垢材
大開口:特注スチールサッシ
玄関ドア:鉄製玄関ドア
※掲載している建築プランや写真はイメージです。

Follow us